男子学生宿舎(1~4号館/7~9号館)
| Aタイプ:男子学生宿舎 1~4号館、7~9号館 | ||
|---|---|---|
| 定 員 | 292名 (日本人228名、留学生64名) |
|
| 寄宿料 | 月額 7,500円 ※別途、光熱水料が必要です。使用量に応じて月額10,000円程度 |
|
| 共通経費 | 月額 1,900円(年度により見直しあり) | |
| 居 室 | 木製ロフトベッド、机、椅子、ロッカー、冷暖房機、 ミニキッチン(IH)、電話機、テレビ用端子 |
|
| 設備 | 浴 室 ※各階1箇所 |
浴槽(1)、シャワー(2室) |
| 談話室 ※2・4階 |
テーブル・椅子・テレビ・冷暖房機 | |
| 洗濯室 ※各階1箇所 |
洗濯機1台 | |
| インターネット | 有り (各自で回線事業者・プロバイダに直接申込が必要、案内は入居時に配布) |
|
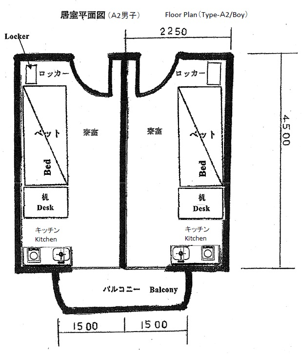
平面図
フロア全体
居室部分
写真
外観
(写真は9号館)
1~4号館は5階建て
7~9号館は4階建て
正面メインエントランスの横に、各自の郵便受けがあります
ベランダは隣室と共有です
(写真は1~2号館ベランダ側)
ベランダ側から見たところ
手前の広場が池の上学生宿舎の緊急避難場所です
駐輪場
池の上学生宿舎は自動車を停めることはできません
自転車・バイクを利用する人は指定の場所に整理整頓してとめます
居室部分
ベランダ側から撮影した居室
フローリング、木の机、木のベッドと落ち着いた雰囲気です
廊下(入り口)側から撮った写真
ベッドは木のスノコですが、カビが生えないよう
定期的に布団を上げて風を通すことが大事です
ロフトベッドの下には棚があり、またスペースも
ありますのでここに衣装ケースなどを入れて、
収納を工夫しているようです
ベッドの下にある棚を正面から見たところ
スチール製のロッカーも設置されてます
窓からは日差しが差し込んで明るいです
ミニキッチンもあり、簡単な調理ができます
(IH対応の調理道具が必要です)
机の天板は熱に弱いので、熱い鍋などを
置くと焦げてしまいますので注意が必要です
ベランダは隣室と共有です
洗濯もベランダを利用して干してください
部屋のドアの入り口上部にも棚があり
ここに物を置くことができます
(あまり重い物は避けてください)
共通部分
玄関・廊下部分
1階玄関扉と掲示板
連絡事項などを掲示していますので
1日1回は確認してください
内階段(土足部分)
2階以上の玄関口
分別用のポリバケツが置いてありますので
各自で出たゴミは市の指定どおりに分別して捨てます
玄関扉を開けたところ
(右手のロッカーが靴箱)
手前の1段低いところで靴を脱ぎます
(ここから土足禁止)
脱いだ靴は置いたままにしてはいけません
靴箱の中
この中に入らない時は各自の部屋に収めます
廊下部分
左右の突き当たりに物入れがあります
(上下2段有り)
物入れの内部
浴室
脱衣場
シャンプーなどの荷物は置いたままにせず利用のつど使ってください
シャワー2室
右手が浴槽に入る扉
浴槽内
トイレ
トイレ入り口
小便器2
洋式便器(2室)
個室内
洗濯室
洗濯機
※現在はコイン式ではありません
1フロア8~10名で使いますので使用後は早く取り出します
談話室
談話室にはテレビ、テーブル、椅子がおいてあります
ので、入居者同士の交流に大いに利用してください
利用した人が清掃、施錠を確実に行います
(写真は1号館談話室)
ここは床がフローリングです

Home
